Saját építésű családi ház
A KBHG-KIVITELEZÉS Kft. eladásra kínál egy tervezőasztalról induló, modern kialakítású 100 m²-es új építésű családi házat Veszprémvarsányba.
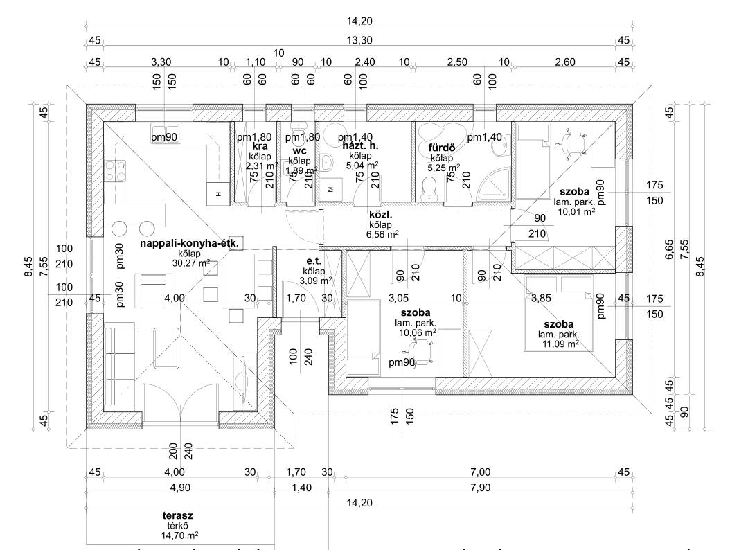
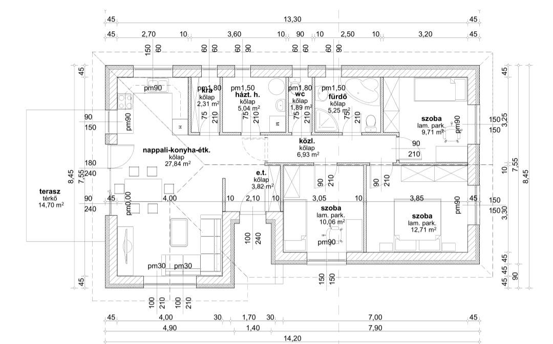
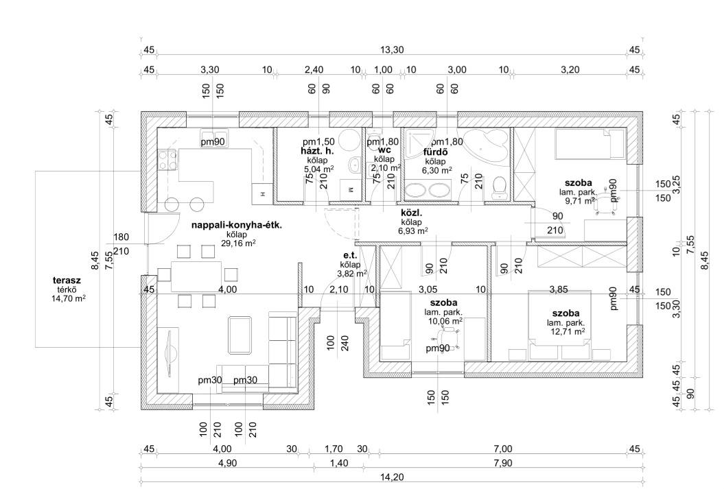
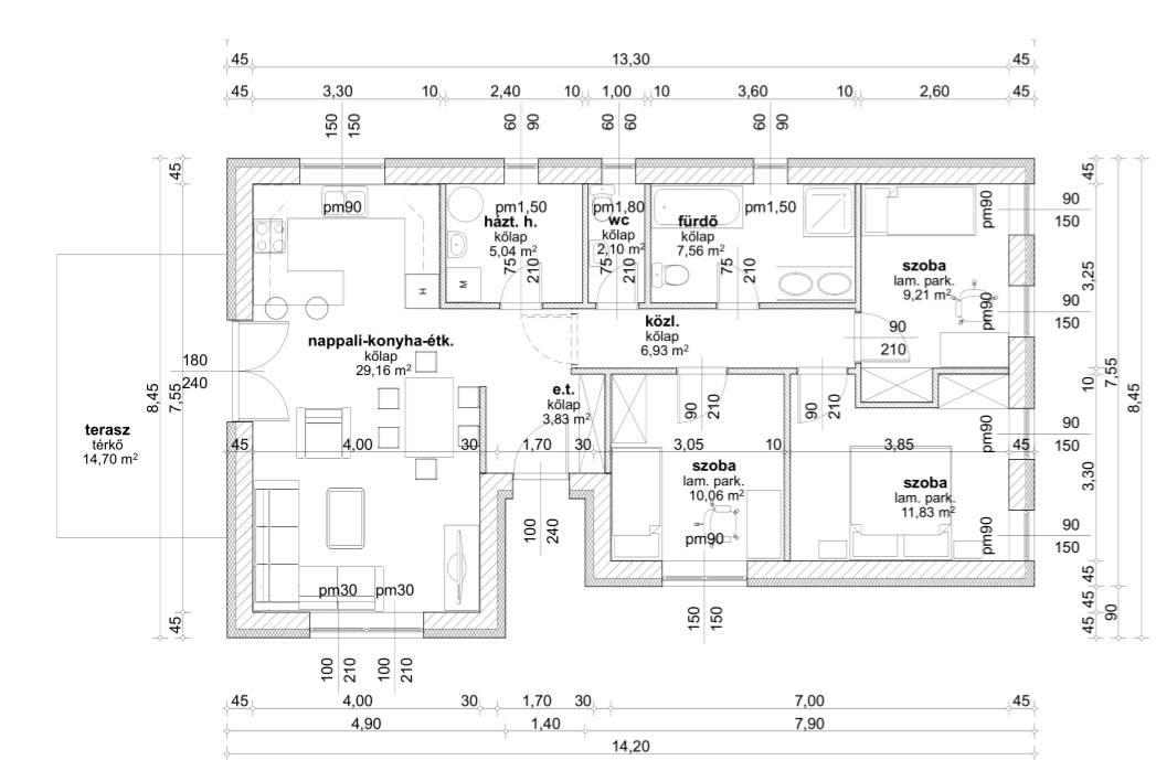
Most még teljes mértékben személyre szabható: 4 alaprajz közül bármelyik lehet (képek) burkolatok műszaki tartalom.
Korszerű, energiatakarékos megoldások
Megbízható kivitelezés.
Kulcsrakész átadás
Garanciával
Lakótér: 100 m²
Telek: 812 m²
Helyszín: Veszprémvarsány
Érdeklődni : kbhgkivitelezes@kbhgkivitelezes.hu +36202891237









